texte

Programme

Extension et réhabilitation d’une longère

Lieu

Plévenon (22)

Superficie

50 m²

Montant des travaux

NC

Maître d'ouvrage

Privé

Équipe

Ensemble.s

Missions

Complète

Calendrier

2025 – en cours

Photographies

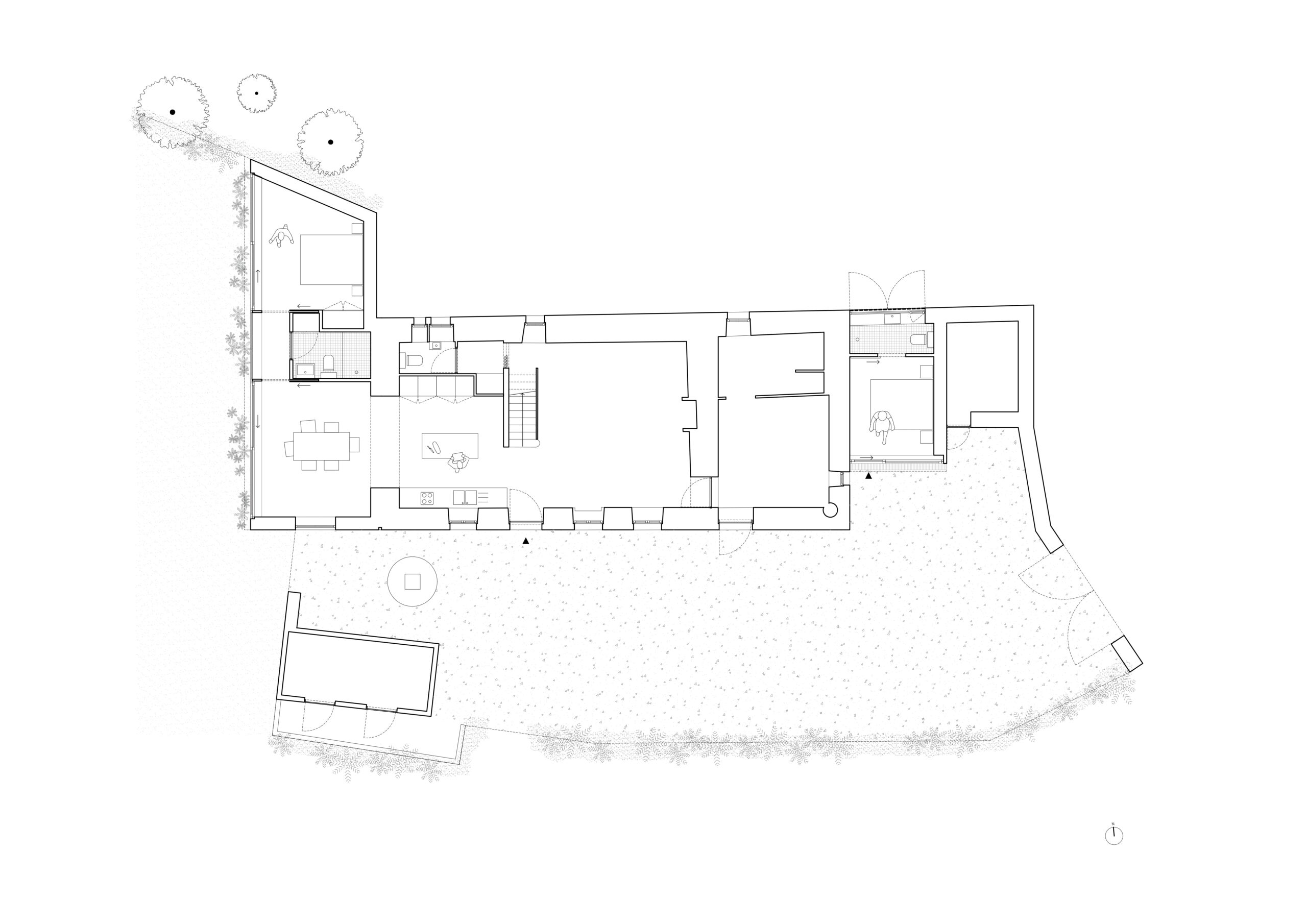
Utilisée comme résidence secondaire, cette longère a vocation à devenir, à terme, un lieu de vie principal. Le projet accompagne cette évolution en rendant la maison plus habitable, plus confortable et davantage ouverte sur son environnement. 

 

L’intervention requalifie les espaces de vie et les ouvre largement vers l’Ouest, en relation directe avec un vaste espace prairie. Le nouveau volume vient remplacer une annexe vétuste pour accueillir une salle à manger, une chambre et une salle d’eau en rez-de-chaussée. Largement vitré, ce nouveau volume affirme une écriture contemporaine en contraste avec la longère en pierre, tout en dialoguant avec elle par l’emploi de matériaux naturels, choisis pour leur capacité à se patiner avec le temps et à s’intégrer durablement dans le contexte naturel et patrimonial.

 

À l’Est, une ancienne dépendance est réhabilitée en studio indépendant, privilégiant la lumière naturelle et la ventilation, dans la continuité de la démarche globale du projet.